Snel en slim inmeten voor verhuur
Voor een pand zonder actuele tekeningen voerden wij een snelle en nauwkeurige 3D-inmeting uit met een mobiele laserscanner. De ingewonnen data is verwerkt tot een bruikbaar 3D-model, inclusief 2D-plattegronden met ruimtenummers en oppervlaktes. Zo beschikt de opdrachtgever over alle informatie die nodig is voor de komst van de nieuwe huurder.
04 april 2025

Mobiel scannen
Het pand is in korte tijd in 3D ingemeten met een mobiele laserscanner. Hoewel het pand leeg stond, zijn in de verwerking alsnog overbodige punten (ruis) verwijderd en is de point cloud visueel recht geplaatst. Deze optimalisatie versnelt het modelleren in latere fasen aanzienlijk.



Model in Revit
De opgeschoonde point cloud is geëxporteerd als een Autodesk Recap-bestand (RCP) en vervolgens in Revit als onderlegger gebruikt. Wanden, vloeren, ramen en andere elementen zijn met een nauwkeurigheid tot 3 cm overgetrokken. De buitenzijde maakte geen deel uit van de scope en is dus buiten beschouwing gelaten.

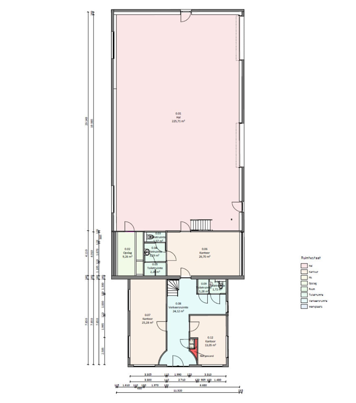
2D-plattegronden
Vanuit het 3D-model zijn 2D-plattegronden gegenereerd, compleet met ruimtenummers en vierkante meters. De aanleiding voor dit project was het ontbreken van correcte tekeningen én de komst van een nieuwe huurder. De opdrachtgever beschikt nu over een actueel, bruikbaar model van het pand.